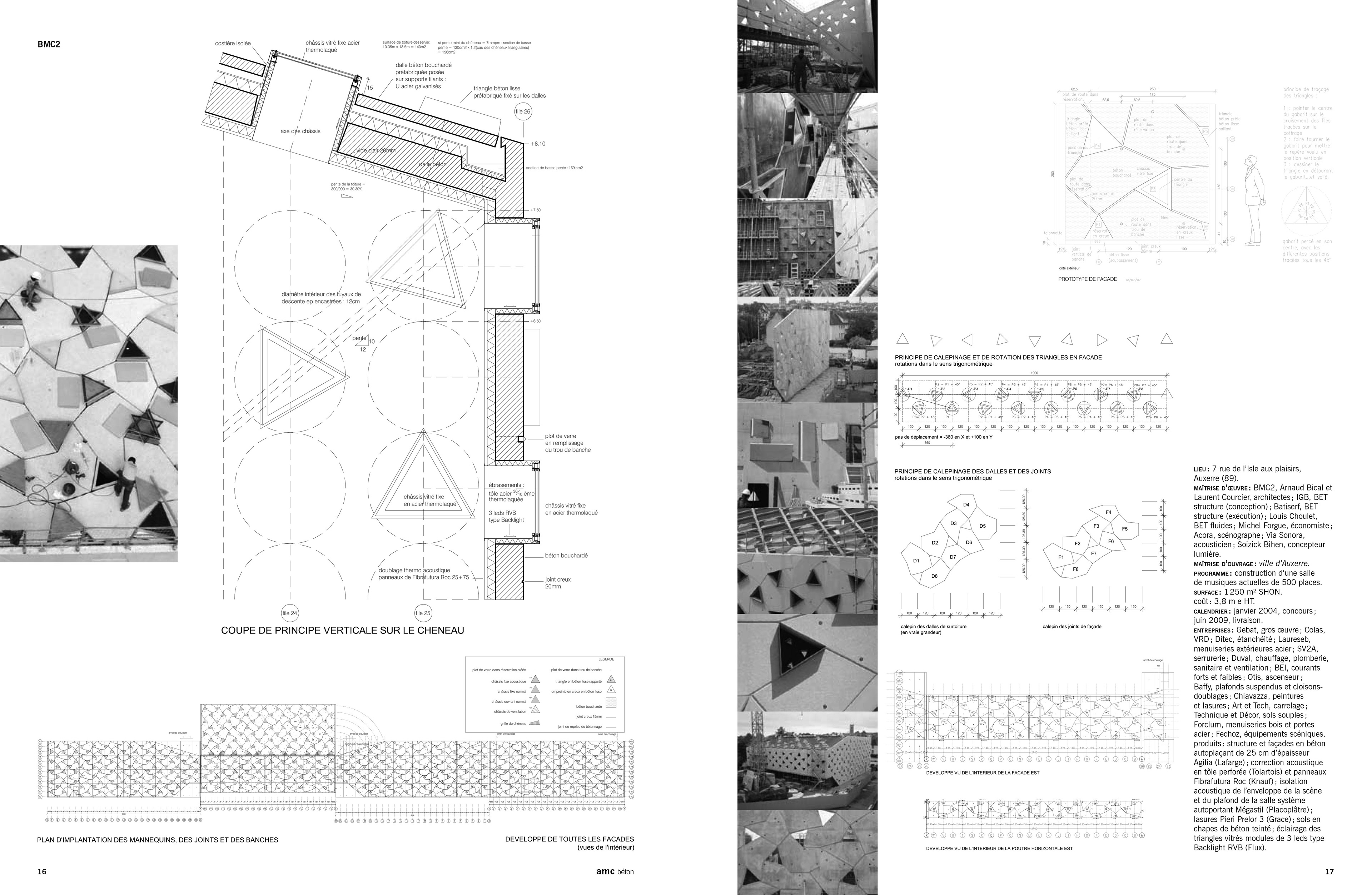
AMC hors série Béton, 2010, p.14-17
Nous utilisons des cookies pour améliorer la navigation de ce site. Accepter Refuser