Quartier de 140 logements à Menucourt
Cité Jardin
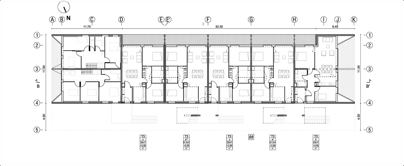
Le projet répond au cahier des charges prescriptions urbaines et paysagères de l’écoquartier de la Pièce d’Alçon à Menucourt (MGAU urbaniste) : une qualité des parcours des habitants jusqu’à leurs logements dès le parking avec air, vue et lumière ; la mise à distance de la voiture et son confinement sous les édifices ; les logements traversants avec des pièces de vie elles-mêmes traversantes, ventilées, l’assurance d’un bon confort d’été, des vues multiples ; des cuisines éclairées et ventilées naturellement ; des prolongements extérieurs, terrasses, balcons, loggias où l’on peut se tenir ; des baies vitrées raisonnablement généreuses et une attention portées aux jardins et plantations. La compacité que nous avons recherchée pour ce petit ensemble dans un écoquartier est gage d’économie mais aussi forcément vertueuse. Un monde durable est d’abord un monde habitable.
------------------------------------------
140 logements, collectifs, intermédiaires et maisons.
maîtrise d’ouvrage : Promogim.
avec Sylvain Morvant & Jean Nicolas Faye, Champ libre, Cergy Pontoise Aménagement.
9 000m² SPC | 12 M€ HT | mission permis de construire. Projet construit.
maîtrise d’ouvrage : Promogim.
avec Sylvain Morvant & Jean Nicolas Faye, Champ libre, Cergy Pontoise Aménagement.
9 000m² SPC | 12 M€ HT | mission permis de construire. Projet construit.